VILLA L+

Suburban Living Sheltered by Concrete & Open to Light

Render de una de las fachadas de Villa L+, con integración del jardín

A Quiet Architecture Rooted in Form and Context

Villa L+ is a private residence located in the Conde Orgaz neighbourhood, a suburban enclave at the heart of Madrid. Conceived in response to the plot’s conditions, the house unfolds in an L-shaped plan, opening towards the southwest to maximise natural light, privacy and garden space. With an upper volume of black concrete that reinterprets a traditional slate roof and a ground floor rendered in glass and wood, the house strikes a delicate balance between mass and lightness, engaging in a respectful dialogue with its context.

Type

Residential, Single-family Home

Location

Madrid, ES

Size

1.000 m²

Client

Private

Year

2016

Budget

960.000,00 €

Architecture

GRAS Reynés Arquitectos

Team

Guillermo Reynés, Álvaro Pérez, Alicia Camino, Iria Gámez, Laura Purlyté, Filip Szafalowic

Technical Architect:

Leandro Núñez Fuentes, Enrique Maroto Arroyo

Structure

Mecanismo

MEP

Úrculo Ingeniería

Renders:

GRAS Reynés Arquitectos

Render del jardín y la piscina de Villa L+, con grandes ventanales que conectan interior y exterior.

A Geometry Designed to Shield and Embrace

The project responds to a central challenge: a large, flat plot surrounded by neighbouring houses that challenge privacy. To address this, the house extends along the northeastern perimeter, adopting an L-shaped plan that embraces the garden while opening towards the southwest. This strategy not only optimises sunlight and views but also protects the interior.

Axonometría de la planta baja de Villa L+, con distribución en L alrededor de la psicina y el jardín.
Axonometría de la planta sotano de Villa L+
Axonometría de la primera planta de Villa L+, donde se aprecian las distintas estancias de la vivienda.

A Sculpted Volume that Evokes Traditional Rooflines

Contextual sensitivity is articulated through a bold reinterpretation of the neighborhood’s characteristic pitched roofs. Rather than using a conventional slate, the design introduces a weighty black concrete upper volume, housing the bedrooms on the first floor. This “thick roof” is not only a contemporary echo of traditional forms but also acts as a grand parasol, providing shade, privacy and a strong presence.

Alzados de Villa L+, donde se aprecian las distintas fachadas y la volumetría del proyecto.

Two Wings, One Garden

The ground floor is organized into two wings: a family zone and a guest pavilion. These are articulated around a central courtyard that functions as both a point of entry and the spatial heart of the house. A fluid sequence of spaces, kitchen, dining room, study, master suite, and living areas, unfolds in a linear rhythm framed by floor-to-ceiling glass and natural wood. This composition fosters an uninterrupted relationship with the garden, blurring the boundary between interior and exterior. At the southern edge of the plot, a swimming pool extends this continuity, aligning with the guest pavilion to complete the architectural loop.

Plano de la planta sótano de Villa L+

Planta sotano

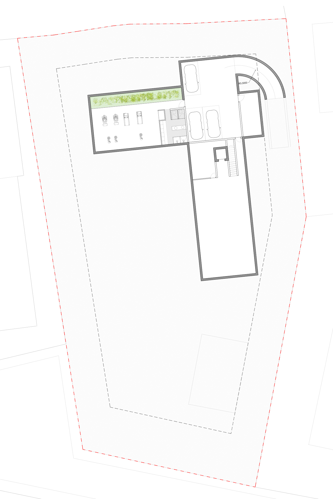
Plano de la planta baja de Villa L+

Planta baja

Plano de la planta primera de Villa L+

Planta primera

Plano de la planta cubierta de Villa L+

Planta cubierta

Render de una de las fachadas exteriores de Villa L+