GREYCODA OFFICES
Industrial heritage reimagined as a new creative hub in Zaragoza

From Old Carpentry to Creative Office
In the heart of Zaragoza’s Old Town, a former carpentry workshop has been transformed into the headquarters of GreyCoda, a music production company dedicated to artist representation and cultural promotion. The project reimagines an industrial space as a contemporary workplace, versatile and deeply rooted in identity.
Program
Interior architecture, interior design, commercial
Location
Zaragoza, ES
Size
180 m²
Year
2025
Client
GREYCODA
Interior Design
Team
Guillermo Reynés, Xenia Dimoka, Zuzanna Cieslewicz
MEP
QNTM
Structure
Eduardo Ramis
Photography
Daniel Salvador Castillo

Recovering the Industrial Essence
The existing architecture, defined by ample heights and large openings to the street, becomes the central element of the intervention. The process began with an almost archaeological approach: stripping away layers of plaster and mortar accumulated over time to reveal the building’s original materiality. Exposed brick and a distinctive curved vault ceiling emerge as traces of the past, seamlessly integrated into the new design.
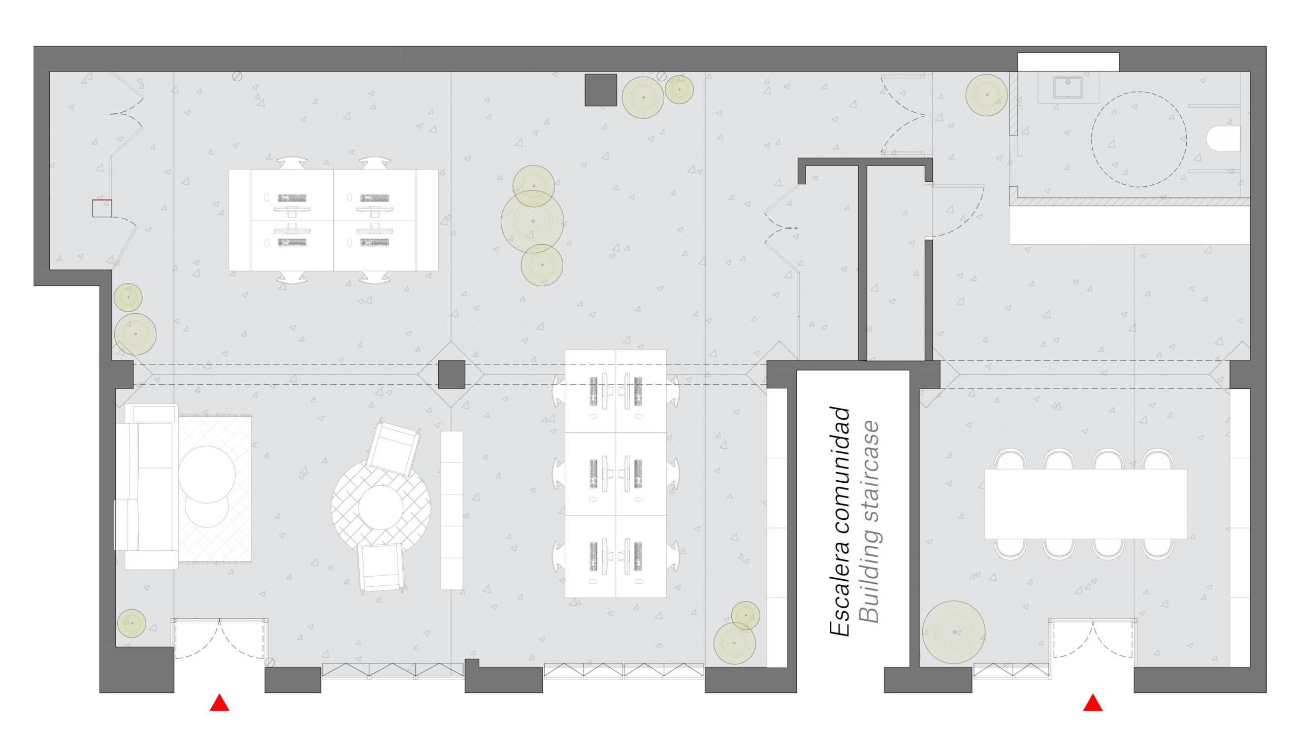
Flexibility & Functional Layout
The inside is organized in a flexible way that makes the most of the space. The staircase of the building divides the ground floor into two zones: a larger space with two windows and a smaller, more intimate one with a single opening. The main room accommodates an open, multipurpose workspace with fixed desks, meeting areas and informal lounge zones; the secondary room incorporates a restroom, a bar and a multi-use space with direct street access, designed also to function as an independent exhibition venue. The steel-framed windows serve as a showcase to the neighborhood while echoing the building’s industrial memory.



Textures in Dialogue with History
Materiality plays a key role. Solid pine flooring is laid over the stone and brick base, providing warmth, acoustic comfort and sensory contrast. From this base, a palette of finishes creates layers of texture: a light-toned ceiling enhances brightness, geometric cork cladding ensures precise acoustic performance and an intense blue marks the transition between rooms, reinforced by a heavy curtain of the same color, lending theatricality and emphasizing character.


The bar and restroom are enclosed in industrial glass, generating transparency and lightness. Furniture combines long desks with singular, domestic pieces, complemented by artworks from the label’s roster and concert posters, shaping an authentic and energetic atmosphere.




An Eclectic Philosophy
The intervention, deliberately eclectic, assembles layers of material and furniture over a robust industrial base, creating a relaxed and genuine environment that reflects the company’s open and informal philosophy.

Visible Functionality
Even the technical systems are integrated into the architectural language: ducts and trays are painted the same color as the ceiling for visual continuity, while lighting is arranged through suspended black rails and spotlights. Exposed industrial elements are softened with metal or polycarbonate covers, reinforcing a contemporary factory-like aesthetic.
The result is a flexible and comfortable workspace that keeps alive the memory of its industrial past while opening itself to the neighborhood as an active showcase for musical culture.


